Our 5-year extended warranty guarantees the quality and durability of your Wellmade Shed or ADU. It covers structural defects and cosmetic issues, so you can enjoy your space worry-free.
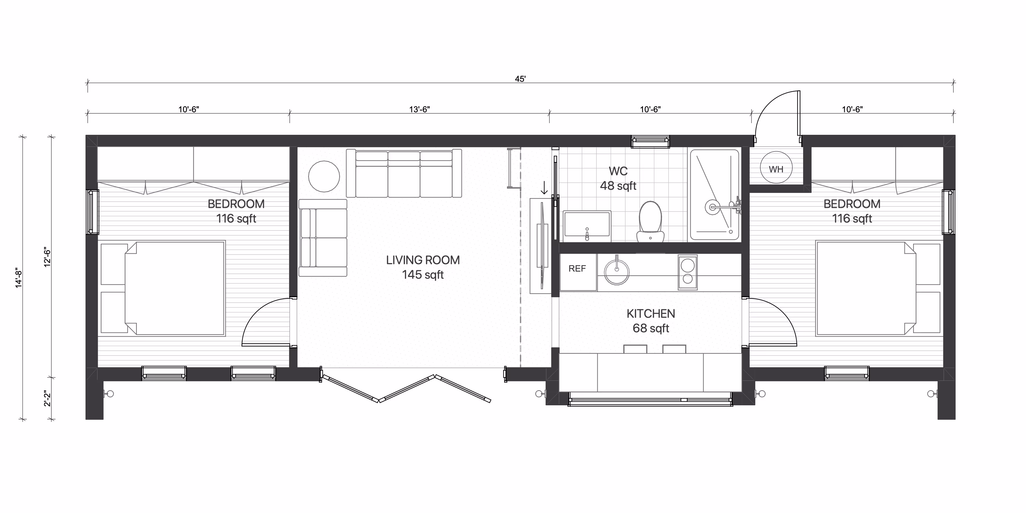
This two-bedroom prefab ADU is designed to maximize every square foot. It features two fully separate bedrooms and a spacious living room, offering a perfect blend of comfort and functionality.
580 ft2 of the exterior wall
(14′-8″ x 45′ nominal size)
493 ft2 net interior space
extra 190 ft2 of mezzanine
Download our detailed brochures to learn more about our products, features, and customization options. Get all the information you need to make an informed decision.
*Estimate based on loan amount, term, and APR provided. Actual rates, terms, and payments may vary based on your credit profile and other factors.
Experience comfort in your ADU with painted walls, premium floors, and high quality materials throughout.
Explore galleryOur experts are here to guide you! Get personalized recommendations, pricing details, and customization options tailored to your needs.
BOOK A CALL WITH OUR EXPERTOur office and fabrication facility is in San Leandro, California.
We don't have a full range of models on display, but we do have a showcase model to get a sense of the space. Click here to make an appointment to visit the showroom, or give us a call at (510) 606-1706 and a customer service representative will make an appointment for you.
Our customer service hours are 9am to 5pm PST Monday through Friday. Excluding federal holidays.
We started in 2020 while most of the world was needing extra space to live comfortably. We've seen some great success since then, and we continue to focus on providing extra space to work, live and play.
We comfortably serve the west coast (California, Oregon, Washington). Occasionally, we get inquiries from other parts of the country, and we discuss those projects individually to make sure we're a good fit for the project.
We have a fully-built Presidio shed in our showroom. You can make an appointment to see it here. We have other units installed throughout California. If you'd like to visit one of our client's units, please work with a Wellmade representative to organize a visit. We'll check to make sure it's not disruptive to their busy schedule.
We use traditional construction methods that meet or exceed the quality standards you're used to; but we've engineered the process to do most of the work in our warehouse. We make panels for our prefab ADUs and prefab sheds that fit together like a puzzle on your property, thereby minimizing disruption on-site. You can learn more about our process by watching this video
All of our panels are made in California with locally sourced materials.
Absolutely! Most of our clients have something custom to fit their individual needs. There are some limitations due to our prefab process, but your sales representative will be best suited to work out those details with you.
We do the work so you don't have to. Our customers say it's the easiest home project they've ever done. Our team of project managers make sure that there's nothing you need to worry about.
Not at all. We're planning to do everything for you with a full turnkey service. That means we can remove an existing structure, connect utilities, and process permits. If, of course, you'd like to do anything yourself with your own contractors, we can remove those details from our scope and quote.
Not really, no. We work closely with you to make sure we understand the project before getting started. Many of our clients go on vacation while we perform the install. However, it would be best to be available on the first day of installation to confirm placement and location.
Our prefab process streamlines installation and we can usually complete the project faster than others. If you have a tight timeline, be sure to communicate it to your sales representative so they can work with you on timing.
Our prefab sheds take about 5-8 days to install, and we usually book those appointments 2-3 months after entering an agreement. Our prefab ADUs take about 5-6 weeks to install, and we book those appointments shortly after obtaining your permits.
We don't offer financing ourselves, but we partner with Supreme Lending to help our clients spread out payments and make their project more affordable. Submit your information on their website
That's why we do what we do. Our system was designed with those hard-to-reach spaces in mind. Each of our panels can fit through any standard doorway, and everything is hand-carried. If you're getting turned away by other companies due to access constraints, let us know. We love a challenge!
We certainly can, but we usually don't have to. After an intitial introductory call, your sales representative will perform an Virtual Site Visit where you will walk around your property while on a video meeting, and we'll record it. If we see any reason to go to the site ourselves, we'll send someone. But 95% of the time a virtual site visit is sufficient.
Nope. Our prefab panelized process eliminates the need for cranes. Each of our panels can fit through any standard doorway and are carried by hand to the installation site.
You’ve got enough to think about. The unit should be the least of your concerns, which is why we offer a 5-year warranty starting from the date of project completion. This covers structural defects resulting directly from our construction work and certain cosmetic issues like:
Damage from vandalism, misuse, natural disasters, or extreme weather is not covered.
Manufacturer Warranties
Any equipment purchased from Wellmade is covered by the manufacturer's warranty, not Wellmade’s. These warranties will be passed on to you as allowed by law.
ADUs typically have a bathroom and kitchen. A home office shed is a single-purpose space that doesn't have plumbing or appliances.
Yes. We'll process the permits on your behalf. However, you'll still need to pay the permit fee to the city.
We put a lot of time and effort into understanding your project before signing a contract. Unlike other construction companies, we do all of our research ahead of time so that your contract is all-included and there are no surprises down the road. Through our Feasibility Study process, we'll both understand what's possible on your property.
We've tried to be as transparent as possible by putting the fully-built unit price right here on the website for everyone to see. The only things that may change this price are: 1) any customizations or upgrades, and 2) any unique site conditions that we couldn't anticipate. Either way, we'll be able to get you a firm final price after we complete a Feasibility Study.
None. We're set up to handle everything. With Wellmade, it's one company one contract.
Put simply...everything! We handle the fabrication, installation, foundation, finishes, and utilities. We can even prep the site or tear down an existing structure if it helps make your life easier. Our whole goal is to make this the easiest home project you've ever had.
With our prefab ADU, we build on a slab on grade concrete foundation.
Yes. We include utility lines for water, sewer, and electricity. The price you see on the website includes up to 50 feet.
Absolutely! Each of our models can be mirrored.
We can, but it may take some additional engineering to build a prefab ADU on a slope. We'll work with you and our engineers closely to make sure we both understand what's needed.
Our prefab ADUs come with premium kitchen cabinets, sink, fridge, cooktop, toilet, shower, vanity, and color choices for walls and flooring
We've simplified the color choices of our modern ADUs to make it easy to mix and match. However, if you don't find the colors you want, let us know and we'll work with you to make it just right.
Most jurisdictions in California require a 4-5 ft setback from the property line. We'll uncover those details in our Feasibility Study.

Fill out the form, we will be in touch with you shortly
